Milano 257
Nel comune di Baranzate, nella zona nord-ovest dell’area metropolitana di Milano, proponiamo in vendita complesso immobiliare a destinazione industriale situato lungo la SS233 Varesina, in posizione strategica e ben collegata alle principali arterie autostradali.
Il complesso è composto da due edifici principali comunicanti, oltre a diverse strutture accessorie:
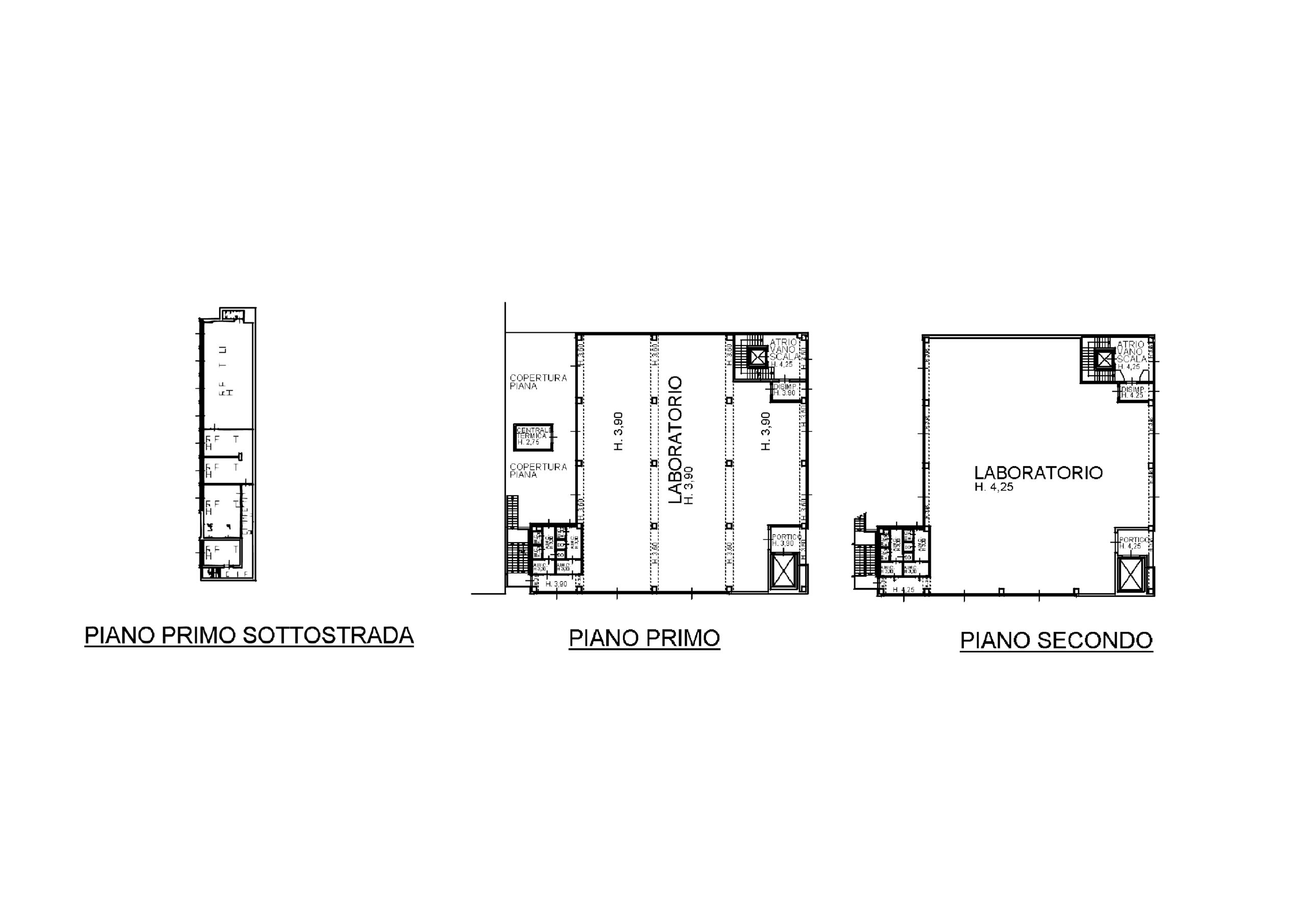
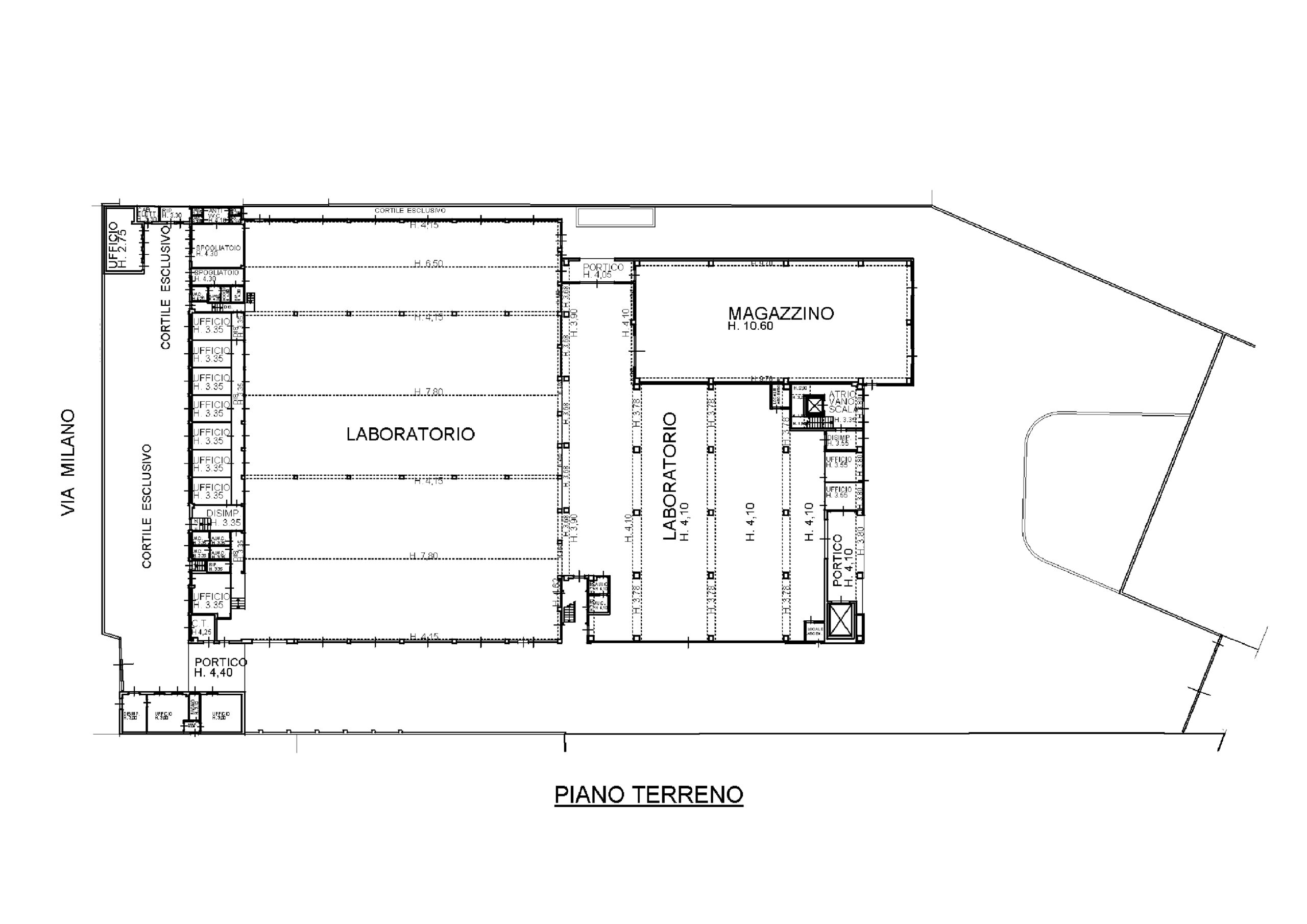
Edificio A: capannone industriale di circa 5.200 mq, comprensivo di uffici, spogliatoi e locali deposito.
Edificio B: fabbricato su tre livelli destinato a lavorazioni, assemblaggio, magazzino e stoccaggio, dotato di ascensore e montacarichi per la movimentazione delle merci.
Area esterna di circa 7.000 mq, in parte asfaltata e idonea alla movimentazione di mezzi pesanti.
La proprietà dispone inoltre di ampie aree esterne operative. Il complesso è dotato di impiantistica completa per uso industriale (riscaldamento a gas, cabina elettrica di trasformazione, impianto antincendio e illuminazione di emergenza) e si presenta in buono stato manutentivo.
Grazie alle ampie superfici di magazzino, alla distribuzione su più livelli e alla presenza di montacarichi per merci, l’immobile si presta a diverse destinazioni operative, tra cui attività produttive, logistiche o la realizzazione di un centro di self storage, con possibilità di suddividere gli spazi in box o depositi per aziende e privati, settore in forte crescita nell’area metropolitana di Milano.
| Riferimento annuncio | |
| Contratto | Vendita |
| Tipologia | Logistica & Industriale |
| Superficie | 6371 mq |
| Locali | 15 |
| Piano | T, 1, 2 |
| Disponibilità | Immediata |
| Prezzo | 5.000.000 € |
| Prezzo al mq | 784 € |
| Anno di costruzione | 1970 e 1995 |
| Stato | Buono |
| Classe energetica | Esente |